Omkar Atulyam

Omkar Atulyamis a residential project in Kadi, designed to offer modern living in a community setting, with a focus on providing budget-friendly townhouses/row houses. This project aims to cater to individuals and families seeking a comfortable and contemporary lifestyle without compromising affordability.

Nera Hotel Shiv Palace , Beside Amitron Company, Budasan-irana Road , Kadi
INQUIRE NOWDOWNLOAD BROCHURE

RERA : PR/GJ/ahmedabad/ahmedabadcity/Auda/XXX11111/XXXXX

PROJECT HIGHLIGHTS

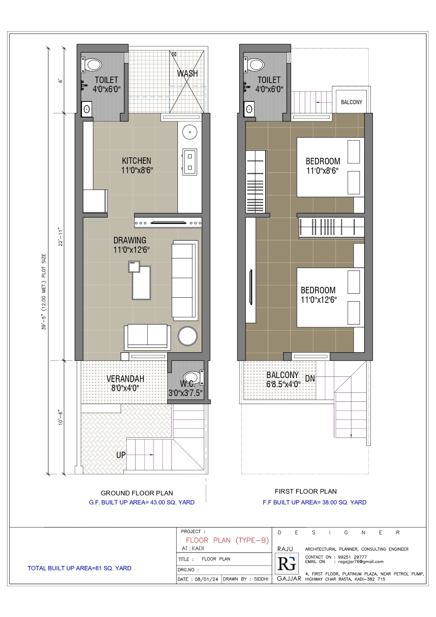
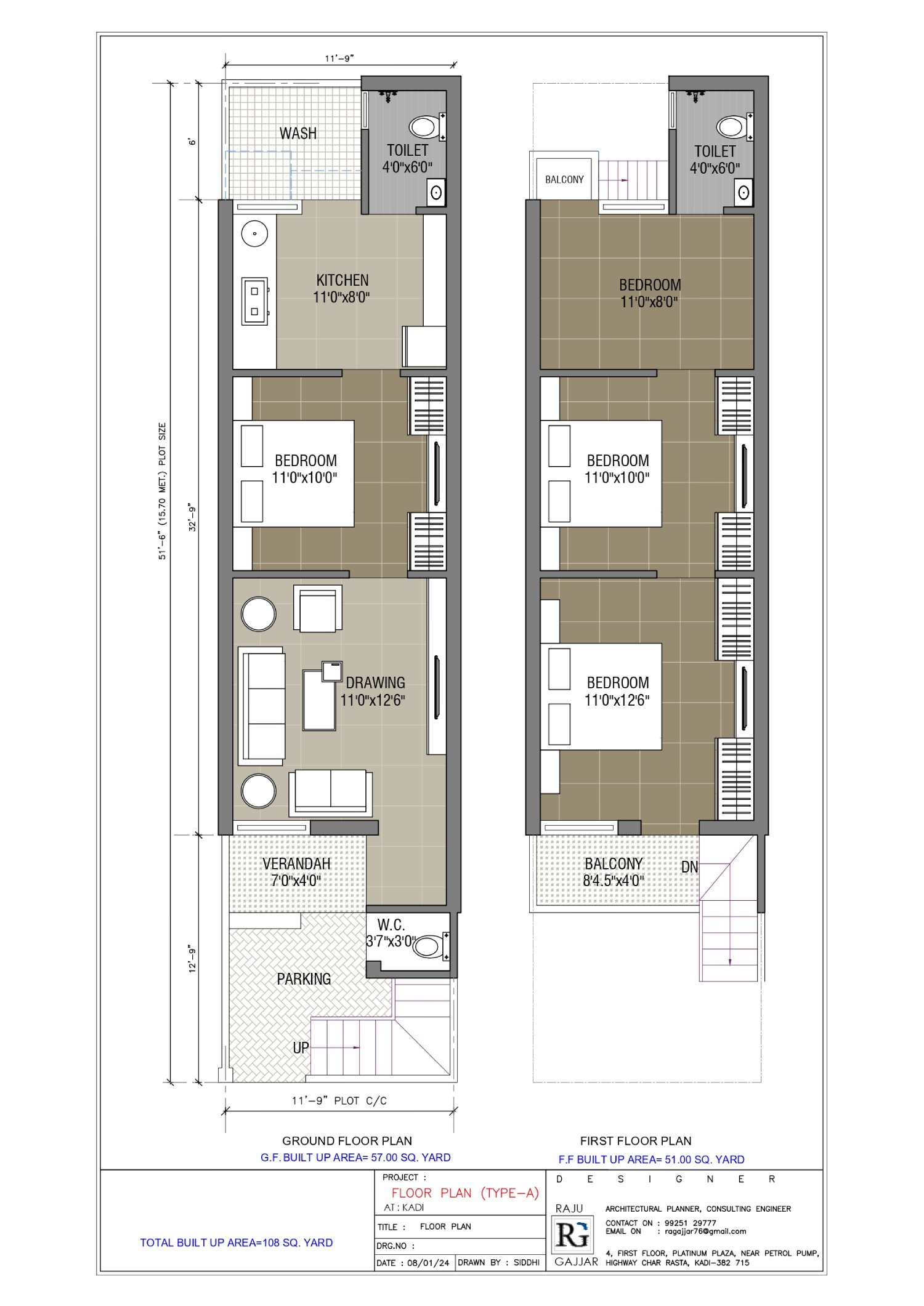
TOTAL UNITS
122
NUMBER OF HOUSES
99
NUMBER OF SHOPS
23
TOTAL SQ FEETS
House = 729,
Shop = 265
PLOT AREA (SQ. YARD)
House = 52
PLOT AREA (SQ .FEET)
470
CONSTRUCTION BUILT UP AREA ( SQ. YARD)
81
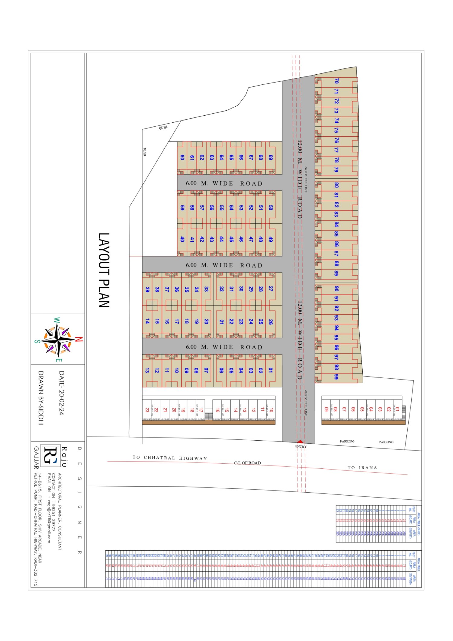
PROJECT LOCATION
Kadi

ATULYAM'S GALLERY

HARMONY'S AMENITIES

EXPLORE THE LAYOUTS

INQUIRE NOW

Like what you see? Don’t wait — your perfect home is just a message away!